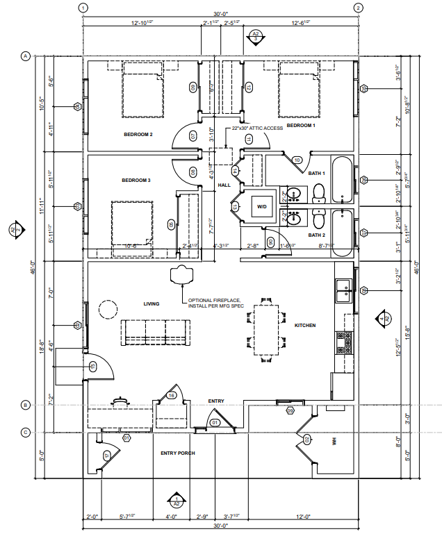
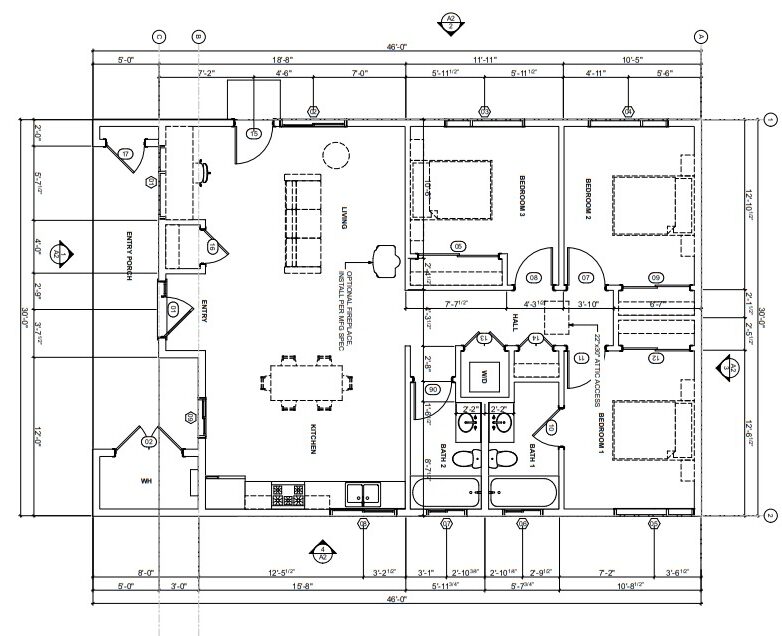
Placer Model C