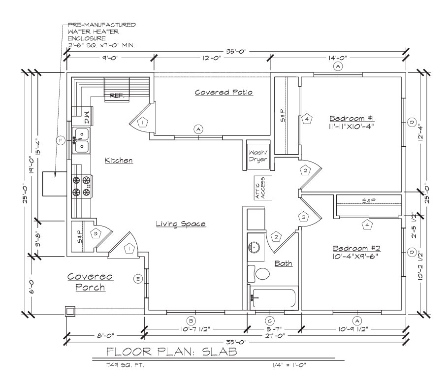
Model YC6