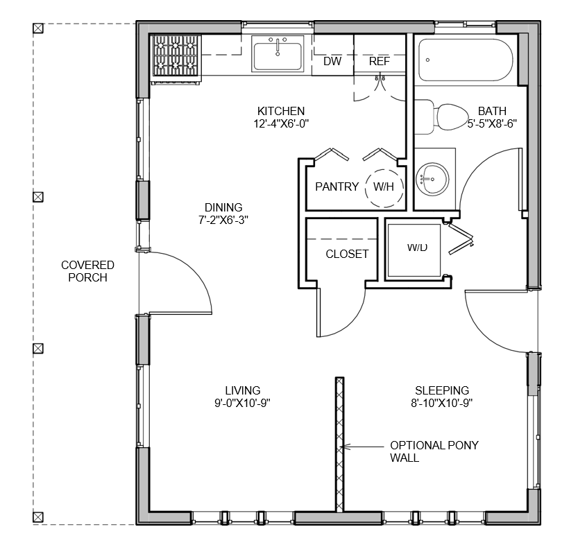
Model A2